咨询热线

400-611-8065

Classification

新闻动态

400 611 8065
传真:传真号码
手机:400 611 8065
邮箱:电子邮件0
地址:贵州省贵阳市花溪区清溪路88号
当前位置: 首页 > 新闻动态

会计档案案卷格式

发布时间:2023-02-22 09:15:25 丨 浏览次数:0

会计档案案卷格式

DA/T 39—2008

 

1 范围

    本标准规定了会计档案卷盒及其有关表格的项目设置、规格、质量要求。

    本标准适用于各级各类机关、团体、企业事业单位和其他组织。

 

2 规范性引文件

 

下列文件中的条款通过本标准引用而成为本标准的条凡是注日期的引用文件,其随后所有的修改单(不包括勘误的内容)或修订版均不适用于本标准,然而,鼓励根据本标准达成协议的各方研究是否可使用这些文件的最新版本。凡是不注日期的引用文件,其最新版本适用于本标准

GB/T 9705-88  文书档案案卷格式

财会字[1998]32号 《会计档案管理办法》

 

3会计凭证封面格式

 

3.1会计凭证封面外形尺寸

    封面尺寸规格采用245mm×130mm(长×宽)或245mm×150mm(长×宽)。

    封底尺寸同封面尺寸。

3.2  会计凭证封面项目

    封面项目包括单位名称、会计凭证名称、时间、册数、册次、记帐凭证起止号、记帐凭证数、附件数、会计凭证总数、会计主管、装订人、装订时间、备注。各项目具体位置、尺寸[见附录A 图A1(a)、图A1(b)]。

3.3  封面项目的填写方法

3.3.1  单位名称:填写形成会计档案的单位名称,必须用全称或通用简称。如“中国共产党中央委员会”简称为“中共中央”;“中华人民共和国卫生部”简称为“卫生部”;“云南省人民政府财政厅”简称为“云南省财政厅”。不得简称“本部”、“本委”、“本省财政厅”等。

3.3.2  会计凭证名称:填写能够反映会计凭证用途或内容的名称,如:“收款会计凭证”、“付款会计凭证”、“转帐会计凭证”或“基建会计凭证”、“工会会计凭证”、“预算外会计凭证”等。

3.3.3  时间:填写本册会计凭证的起止年月日。

3.3.4  册数:填写会计凭证的册数。

3.3.5  册次:填写本册会计凭证的序号。

3.3.6  记帐凭证起止号:填写本册记帐凭证起号和止号。

3.3.7  记帐凭证数:填写记帐凭证的张数。

3.3.8  附件数:填写本册会计凭证的附件张数。

3.3.9  会计凭证总数:填写本册所有凭证的合计张数。

3.3.10  会计主管:填写单位内部具体负责会计工作的中层领导人员。

3.3.11  装订人:填写负责该本会计凭证装订的人员。

3.3.12  装订时间:填写该本会计凭证装订结束的时间。

3.3.13  备注:填写该本凭证需要说明的事项。

3.4  制成材料质量

记帐凭证封面和封底宜采用126克以上牛皮纸制作。

 

4会计凭证盒格式

 

4.1会计凭证盒外形尺寸

会计凭证盒的外形尺寸采用275mm×155mm(长×宽),盒脊厚度可根据需要设置30mm40mm60mm等。[见附录A 图A2(a)]

4.2  会计凭证盒项目及填写方法

4.2.1  会计凭证盒正面项目

    会计凭证盒正面项目包括单位名称、凭证名称、时间、册数、册次、记帐凭证起止号、附件数、会计凭证总数、起止时间、归档时间、立卷人、保管期限、全宗号、目录号、案卷号。各项具体位置、尺寸[见附录A 图A2(b]。

4.2.2  正面项目的填写方法

4.2.2.1  单位名称、凭证名称、时间、册数、册次、记帐凭证起止号、附件数、会计凭证总数、起止时间根据记帐凭证封面的有关项目对应填写,填写方法与记帐凭证封面一致。

4.2.2.2  归档时间:填写单位内财务部门向档案部门移交会计档案的年月日。

4.2.2.3  立卷人:填写整理本盒会计凭证的人员姓名。

4.2.2.4  保管期限:根据财政部和国家档案局1998年颁布的《会计档案保管期限表》确定填写该案卷的保管期限。

4.2.2.5  全宗号:填写档案馆给立档单位编制的代号。企业可填写表达单位的汉语拼音代字。

4.2.2.6  目录号:填写全宗内案卷所属目录的编号,在同一个全宗内不允许出现重复的案卷目录号,企业或参照《工业企业档案分类试行规则》编制分类方案的单位,可填写类别特征代码。

4.2.2.7案卷号:目录内案卷的顺序编号,在同一个案卷目录(或分类体系的最低一级类目)内不允许出现重复的案卷号。

4.2.3  会计凭证盒盒脊项目及填写方法

    会计凭证盒盒脊项目包括全宗号、目录号、案卷号、年度、月份、册数、册次、保管期限,其排列格式尺寸[见附录A图A2(c)]。

盒脊项目与正面有关项目对应填写。

4.3  制成材料质量

    会计凭证盒宜采用340克以上箱板纸制作。

 

5会计档案盒格式

 

5.1  会计档案盒外形尺寸

会计档案盒的外形尺寸采用310mm×220mm310mm×260mm(长×宽),盒脊厚度可根据需要设置20mm30mm40mm等。[见附录A 图A3(a)]

5.2  会计档案盒项目及填写方法

5.2.1  会计档案盒正面项目

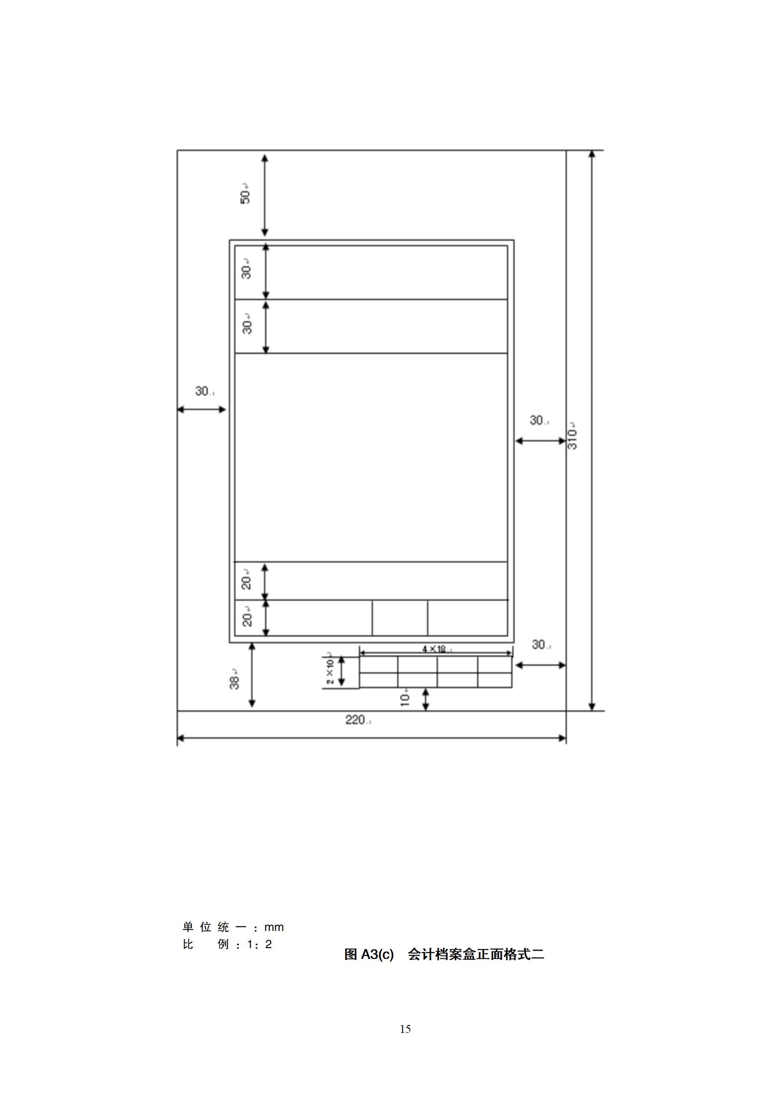
会计档案盒正面项目包括全宗名称、案卷题名、时间、卷数、张数、保管期限、全宗号、目录号、案卷号、盒号。各项目具体位置、尺寸[见附录A图A3(b)、图A3(c)]。

5.2.2  正面项目的填写方法

5.2.2.1  全宗名称:全宗名称相当于立档单位的名称,填写时和会计凭证盒正面上的“单位名称”要求一致。

5.2.2.2案卷题名:由整理会计凭证的人员自拟。案卷题名应准确概括本盒会计档案的形成单                             

位、时间、内容、类别,如:“曲靖市财政局二00二年度(或上半年、下半年、季度)财务报告”、“曲靖市财政局二00二年基金管理总帐”、“曲靖市乡镇企业局二00二年行政(或事业、或工会)

现金日记帐”。文字力求简炼、明确。

5.2.2.3  时间:填写形成本盒会计档案的起止年月日。

5.2.2.4  卷数、张数:填写本盒内会计档案的卷数和张数。

5.2.2.5  保管期限:按照《会计档案保管期限表》填写该盒会计档案的保管期限。

5.2.2.6  全宗号、目录号:填写方法与会计凭证盒上的“全宗号”、“目录号”的要求相同。

5.2.2.7  案卷号:填写本盒内会计档案的案卷号或案卷起止号,在案卷起号和止号之间用“一”隔开。

5.2.2.8  盒号:盒号是同一全宗、同一目录内按照案卷顺序号装盒的编号。

5.2.3  会计档案盒盒脊项目的填写方法

会计档案盒盒脊项目包括年度、全宗号、目录号、案卷号、盒号、保管期限。其排列格式尺寸[见附录A 图A3(d)]。

年度填写本盒会计档案所属年度,其他项目与正面相应项目填写一致。

5.3  制成材料质量

会计档案盒宜采用700克以上无酸纸制作。

 

6 帐簿启用及接交表格式

 

6.1  帐簿启用及接交表用纸尺寸及质量要求

6.1.1  用纸尺寸

帐簿启用及接交表用纸幅面尺寸采用国际标准A4型(长×宽为297mm×210mm)。非国际标准纸帐薄可根据实际需要另外确定用纸尺寸。

6.1.2  质量要求

帐簿启用及接交表宜采用70克以上白色书写纸制作。

6.2  帐簿启用及接交表项目和填写方法

6.2.1  帐簿启用及接交表正面项目和填写方法

6.2.1.1  正面项目

帐簿启用及接交表正面项目包括单位名称、帐簿名称及编号、帐簿页数、帐簿起止日期、经管人员、接交记录、备注、档号、贴印花税。各项目具体位置、尺寸[见附录A 图A4(a]。

6.2.1.2  正面项目的填写方法

6.2.1.2.1单位名称:填写形成会计档案的单位名称,并加盖公章,填写要求与记帐凭证封面上的“单位名称”相同。

6.2.1.2.2  帐簿名称及编号:填写该帐簿所属的类别及其排列顺序号。

6.2.1.2.3  帐簿页数:填写该帐簿中有内容记载的帐簿页数(空白帐页除外)。

6.2.1.2.4  帐簿起止时期:填写该帐簿启用和终止的年月日。

6.2.1.2.5  经管人员:填写单位内管理财务的负责人姓名、会计姓名、复核姓名、出纳姓名。

6.2.1.2.6  接交记录:该帐簿在使用过程中人员发生变化时,由接管和交出双方分别签名,并填写接交日期,同时,经管人员要填写职别并签名。

6.2.1.2.7  备注:填写该帐簿中需要特别说明的情况。

6.2.1.2.8  印花税:在印有“贴印花税”的空格处贴上印花税票。

6.2.1.2.9  档号:按照本单位档案分类编号方案的要求填写该帐簿的编号。

6.2.2  帐簿启用及接交表背面项目和填写方法

6.2.2.1  背面项目

    帐簿启用及接交表背面项目包括科目名称、页次。各项目具体位置尺寸[见附录A  A4(b]。非国际标准纸帐薄可根据实际需要另外确定用纸尺寸。

6.2.2.2  背面项目的填写方法

6.2.2.2.1  科目名称:根据该帐簿设置的科目名称依次填写。

6.2.2.2.2  页次:在编写该帐簿页码总流水顺序号的基础上,分别填写各个科目在该帐簿中的页码位置。

 

7会计档案目录格式

 

7.1  会计档案目录用纸尺寸及质量要求

会计档案目录的用纸尺寸采用国际标准A4型(长宽为297mm×210mm),纸张质量宜采用70克以上白色书写纸制作。

7.2  会计档案目录项目

会计档案目录项目包括案卷号、类别、题名、起止时间、保管期限、卷内张数、备注。各项目具体位置、尺寸(见附录A 图A5)。

7.3  项目的填写方法

7.3.1  案卷号:根据整理会计档案时会计凭证盒或会计档案盒上的对应项目填写。

7.3.2  类别:填写该卷会计档案所属的类别,如:“会计凭证类”、“会计帐簿类”、“财务报告类”等。

7.3.3  题名:题名即案卷题名,填写要求与会计档案盒上的“案卷题名”相同。

7.3.4  起止时间:填写该卷档案启用和终止的年月。

7.3.5  保管期限:根据整理会计档案时确定的会计凭证盒或会计档案盒上的保管期限填写。

7.3.6  卷内张数:指会计凭证总数、帐页总数或财务报告的总张数,根据该卷会计档案的具体张数填写。

7.3.7  备注:填写记帐凭证起止号或其他需要说明的事项。

 

8卷内目录格式

 

8.1  卷内目录纸尺寸及质量要求

卷内目录用纸尺寸及质量要求与会计档案目录相同。

8.2  卷内目录项目包括顺序号、责任者、文号、题名、日期、页号、备注、各项目具体位置、尺寸(见附录A 图 A6)。

8.3  项目的填写方法

8.3.1顺序号:以卷内文件材料排列先后顺序填写序号,亦即件号。

8.3.2  责任者:填写对档案内容进行创造或负有责任的团体和个人,即文件材料的署名者。

8.3.3  文号:填写文件制发机关的发文字号。

8.3.4  题名:即文件材料标题,一般应照实抄录,没有标题或标题不规范的,可自拟标题,外加

“[]”号。

8.3.5  日期:填写文件材料的形成时间,以8位阿拉伯数字标注年月日,如20070619。

8.3.6  页号:填写卷内文件材料所在之页的编号。

8.3.7  备注:在需要说明情况的文件材料栏内打*”号,并将需说明的情况填写在备考表中。

 

9卷内备考表格式

 

9.1  卷内备考表用纸尺寸及质量要求

卷内备考表用纸尺寸及质量要求与会计档案目录相同。

9.2  卷内备考表项目

卷内备考表项目包括本卷情况说明、立卷人、检查人、立卷时间、检查时间,各项目具体位置、尺寸(见附录A 图A7)。

9.3  项目的填写方法

9.3.1  本卷情况说明:填写卷内文件材料(财务报告类和其他类)缺损、修改补充、移出、销毁等情况。案卷立好后发生或发现的问题由有关的管理人员填写并签名,标注时间。

9.3.2  立卷人:由负责立卷者签名。

9.3.3  检查人:由案卷质量审查者签名。

9.3.4  立卷时间:填写完成立卷工作的年月日。

9.3.5  检查时间:填写审查案卷质量的年月日。

 

10会计档案移交清单格式

 

10.1  会计档案移交清单用纸尺寸及质量要求

与会计档案目录相同。

10.2  会计档案移交清单项目

    会计档案移交清单项目包括年度、种类及数量、移交部门及移交人、接收部门及接收人、监交人、移交时间、备注。各项具体位置、尺寸(见附录A 图A8)。

10.3  项目填写方法

10.3.1  年度:填写需要移交的会计档案所属年度,用4位阿拉伯数字填写。

10.3.2  移交部门及移交人:由单位内财务部门及其管理人员填写并盖章签字。

10.3.3  接收部门及接收人:由单位内档案部门或接收会计档案的有关部门及其管理人员填写并盖章签字。

10.3.4  监交人:由监督办理接交档案手续的人员签名。

10.3.5  移交时间:填写办理会计档案移交手续的年月日。

10.3.6  备注:填写移交范围的会计档案中需标明的情况。    

1677027927371707.jpg

1677027927634967.jpg

1677027927574803.jpg

1677027927926196.jpg

1677027927330171.jpg

1677027927478100.jpg

1677027927993259.jpg

1677027927750531.jpg

1677027927484295.jpg

1677027927141980.jpg

1677027927314730.jpg

1677027955529102.jpg

1677027955768407.jpg

1677027955842984.jpg

1677027955826255.jpg


Copyright © 2023 航旭信息科技 版权所有 Powered by HANGXU
电 话:400-611-8065 地 址:贵阳市花溪区清溪路88号
黔ICP备2022009797号

扫一扫关注微信公众帐号